PROPERTY SUMMARY
PROPERTY DESCRIPTION
Strictly by Private Appointment.
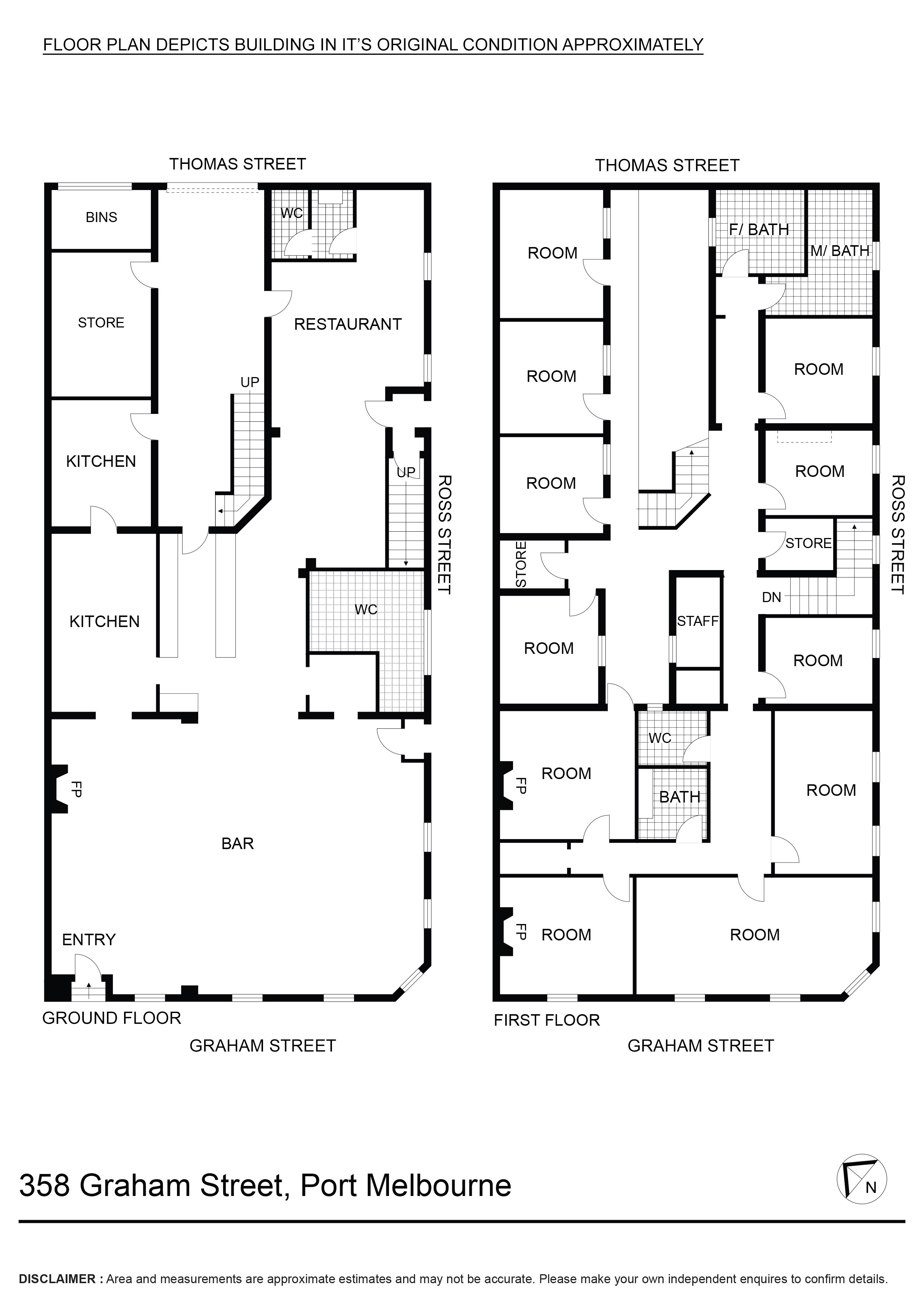
Vacant Victorian Freehold with current planning permit for 21 rooms each with en-suite, and public bar over 3 levels.
One of Port Melbourne’s old classic pubs with a story to tell. Nestled on Ross Street by the sea. It awaits a new lease of life to suit its prime inner-city location. The original building is standing proud but has seen better days and can be described as in need of TLC due to fire damage.
With over 550 sqm*(approx.) of building area comprising of a front bar, lounge, restaurant, kitchen, accommodation, courtyard, and 2 cellars.
The property is offered with vacant possession, not trading this unpretentious ‘No bells and whistles’ pub ‘stands on 314 sqm* (approx.) of land opposite the famed Clare Castle Gastro Pub.
The future potential for a big house, home office, townhouses, apartments, B&B, mixed-use development incorporating the hotel as its centerpiece. (STCA)
Due to its prime inner-city location, with the added incentive of a General Liquor Licence for consumption. The on and off licensed premises has a ”ready set go” development permit for 825 sqm* (approx.). Potential for parking credits under current use, subject to approval.
With a rich history this inner-city landmark corner site hotel freehold with 3 street frontages is a rare and exciting opportunity.
For further details contact
Frank Callaghan
0407 313 753 | frankc@frangordon.com.au
Frank Callaghan Jnr
0410 273 734 | frankjnr@frankgordon.com.au











